Realitná kancelária Butterfly-reality s hrdosťou ponúka na predaj nádherný 4-izbový bungalov v malebnej obci Vydrany, okres Dunajská Streda. Tento moderný dom sa nachádza na priestrannom pozemku s výmerou 663 m2, ktorý ponúka nielen dostatok miesta na relaxáciu, ale aj záhradný domček a studňu, ideálne pre milovníkov záhradkárčenia a vonkajších aktivít.
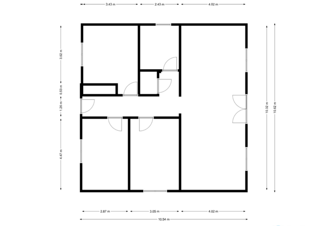
Dispozícia domu je premyslená a praktická, pozostáva z vstupnej chodby, dvoch kúpeľní vybavených vaňou a sprchovým kútom, samostatného WC, troch útulných izieb a priestrannej obývacej izby spojenej s jedálňou a kuchynským kútom. Nechýba ani terasa, kde si môžete vychutnať rannú kávu alebo večerné posedenie s rodinou a priateľmi. S úžitkovou plochou 101,4 m2 je tento bungalov ideálnym miestom pre rodiny, ktoré hľadajú pohodlie a moderné bývanie.
Dom bol kolaudovaný v roku 2017 a jeho konštrukcia je založená na pevných betónových základoch s vodorovnou izoláciou. Murované tehly, sadrokartónový strop s rovným podhľadom a strecha pokrytá pálenou škridlou s fúkanou tepelnou izoláciou zabezpečujú nielen estetický vzhľad, ale aj energetickú efektívnosť. Plastové okná a podlahy z veľkoplošného plávajúceho vinylkoroku v obytných priestoroch a kuchyni dodávajú domovu moderný nádych, zatiaľ čo keramické dlažby v sociálnych zariadeniach a technickej miestnosti sú praktické a ľahko udržiavateľné.
Kuchyňa je vybavená zabudovanými spotrebičmi, vrátane elektrickej sklokeramickej varnej dosky, sporáka a umývadla, čo z nej robí ideálne miesto pre kulinárske dobrodružstvá. Vykurovanie a ohrev teplej užitkovej vody sú zabezpečené kombinovaným elektrickým kotlom Protherm a podlahové teplovodné vykurovanie zaručuje príjemnú atmosféru počas chladných mesiacov.
Dom je napojený na verejný rozvod elektriny, vody a kanalizácie do žumpy v záhrade pred domom, čo zaručuje pohodlné a bezstarostné bývanie. Cena tejto nehnuteľnosti je 239 000 € a zahŕňa kompletný realitný a právny servis, takže sa nemusíte obávať žiadnych skrytých nákladov.
Financovanie je možné prostredníctvom hypotekárneho úveru, s ktorým vám radi pomôžu naši skúsení finanční poradcovia. Neváhajte nás kontaktovať pre viac informácií alebo dohodnite si prehliadku tejto výnimočnej nehnuteľnosti. Butterfly-reality je tu pre vás, aby ste našli váš vysnívaný domov.
Walter Breuer
walter.breuer@butterfly-reality.sk
+421-907 577 643
www.butterfly-reality.sk
© COPYRIGHT Butterfly-reality, s.r.o. – Obrázky a texty sú autorským dielom a majetkom realitnej kancelárie Butterfly-reality, s.r.o.

Walter Breuer
Tel.:+421-907 577 643
Email:walter.breuer@butterfly-reality.sk

Predávam v lokalitách Prievidza, Partizánske, Topoľčany a som v tom úspešný.