Hľadáte bývanie, ktoré spája komfort zrekonštruovaného priestoru s výhodami nízkych nákladov? Máme pre vás výnimočnú ponuku: slnečný a výborne dispozične riešený 3-izbový byt s rozlohou 72 m², situovaný v pokojnej lokalite obce Skačany. Tento priestranný byt na prvom poschodí prešiel kompletnou rekonštrukciou a ponúka vám nielen moderné bývanie, ale aj nadštandardnú kontrolu nad vašimi mesačnými výdavkami vďaka vlastnému plynovému kotlu.
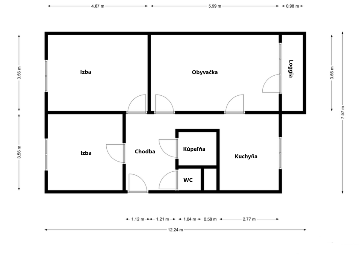
Vstup do bytu vedie do priestrannej chodby, ktorá poskytuje dostatok úložného priestoru a zabezpečuje plynulý prechod do všetkých hlavných miestností. Byt je šikovne rozdelený na tri samostatné izby, ktoré sú ideálne pre rodinné bývanie, či už ako spálňa, detská izba alebo obývacia izba, podľa vašich individuálnych potrieb. Kuchyňa je riešená veľmi prakticky, s prístupom z chodby, ale aj priamo z obývacej izby, čo vytvára moderný otvorený pocit a podporuje spoločenský život. Samozrejmosťou je elegantná kúpeľňa a samostatné WC pre maximálne pohodlie. Z obývacej izby je tiež prístup na útulnú loggiu, ktorá je ideálnym miestom na rannú kávu alebo večerný relax s výhľadom na okolie.
Jednou z najväčších výhod tohto bytu je bezpochyby vlastný plynový kotol, ktorý vám zaručuje úplnú nezávislosť na centrálnej vykurovacej sezóne a prináša výrazné úspory na mesačných platbách za energie. Vďaka kompletnej rekonštrukcii, ktorou byt prešiel, sa môžete ihneď nasťahovať bez potreby akýchkoľvek ďalších okamžitých investícií. K bytu patrí aj nadštandardne veľká pivnica, ktorá poskytuje skvelý priestor pre uskladnenie bicyklov, kočíka alebo sezónnych vecí, čím udržuje poriadok a priestor v samotnom byte.
Obec Skačany ponúka tiché a pokojné bývanie s dobrou občianskou vybavenosťou a rýchlym prístupom do okolitých miest, čo z nej robí ideálne miesto pre život.
Cena tejto výnimočnej nehnuteľnosti je 89 000 € a zahŕňa kompletný realitný a právny servis, takže sa nemusíte obávať žiadnych skrytých nákladov či komplikácií. Financovanie je samozrejme možné aj prostredníctvom hypotekárneho úveru, s ktorým vám radi pomôžu naši skúsení finanční poradcovia, aby bol prechod do vášho nového domova čo najhladší a bez starostí.
Ak vás táto neodolateľná ponuka zaujala a viete si predstaviť svoj život v tomto moderne zrekonštruovanom byte, neváhajte ma kontaktovať pre dohodnutie obhliadky. Rád vám ukážem všetky jeho prednosti osobne a presvedčím vás o tom, že toto je tá správna voľba pre vaše nové bývanie. Kontaktujte ma ešte dnes!
Walter Breuer
walter.breuer@butterfly-reality.sk
+421-907 577 643
www.butterfly-reality.sk
© COPYRIGHT Butterfly-reality, s.r.o. – Obrázky a texty sú autorským dielom a majetkom realitnej kancelárie Butterfly-reality, s.r.o.

Walter Breuer
Tel.:+421-907 577 643
Email:walter.breuer@butterfly-reality.sk

Predávam v lokalitách Prievidza, Partizánske, Topoľčany a som v tom úspešný.